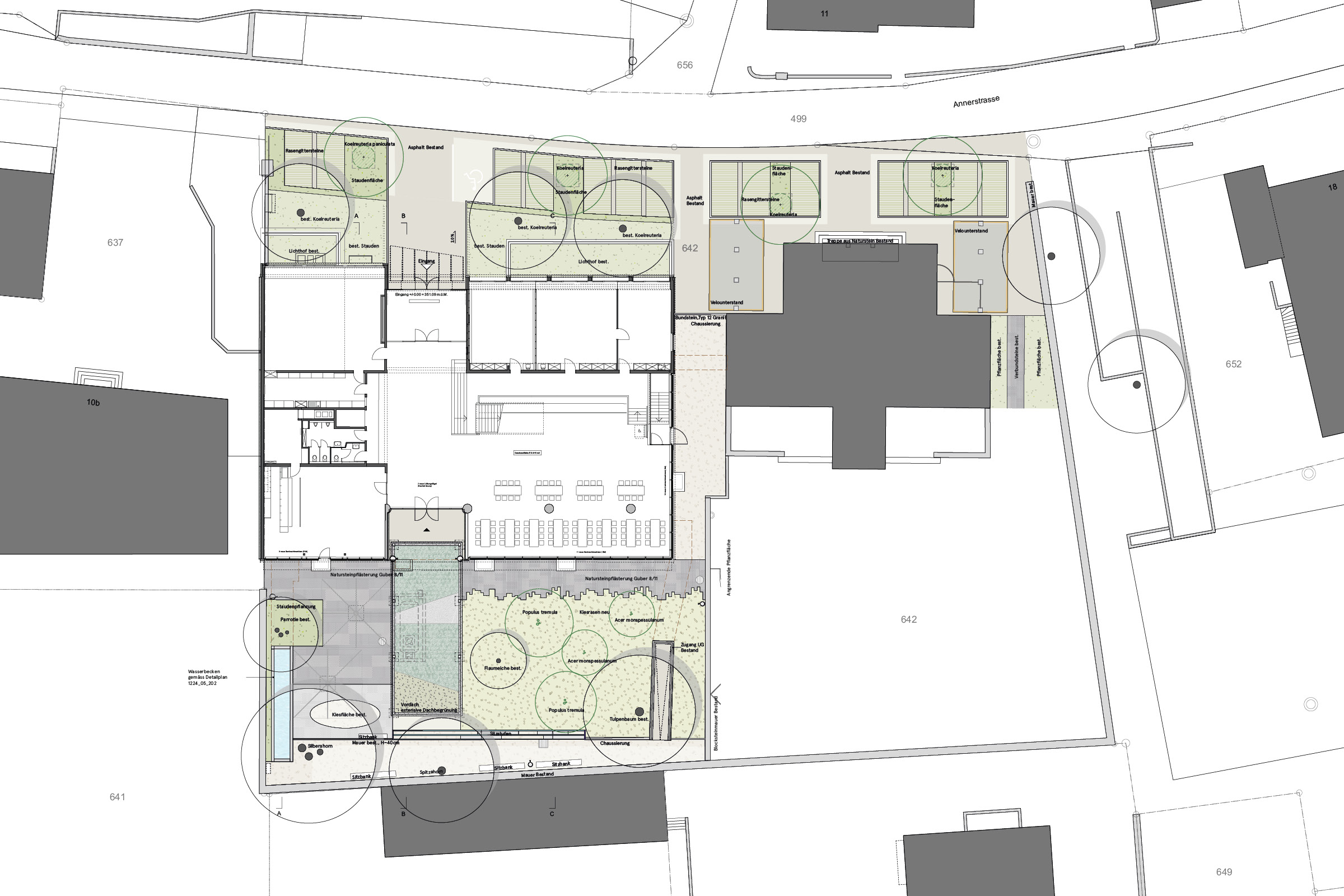
Berufs- und Gewerbeschule Brugg

  • Bauherrschaft: Stadt Brugg
  • Leistungsphasen: Konzept bis Realisierung 2023-2024
  • Architekten: Stoos Architekten AG, Brugg